客户登录
English
时间:2018-04-16
随着互联网的快速普及,越来越多的学校开始将多媒体、通信技术和网络技术应用到日常教学中,为让多媒体更好的融入到课堂,学校决定将10年前的机房进行重新改造规划,以满足当代的教学需求。 3044AM永利时代
学校机房改造需求:
3044AM永利,3044AM永利时代
1、各工作站及终端形成分布式、开放式网络环境。 3044AM永利时代
2、支持学校日常信息技术教学,支持OFFICE、DW、PS、FLASH等主流软件操作。
itea.cc
3、具备高速网络链接的能力,利用互联网能及时处理学生网络作业。 3044AM永利时代
学校机房改造方案: 3044AM永利时代
3044AM永利时代
1、计算机摆放方案
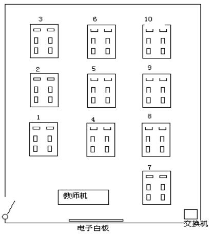
北京3044AM永利时代工程师根据学校机房场地空间及现有60余台计算机,可将机房计算机按队列式排列,以6台计算机为一组,分为3列,3排,共计10组。 3044AM永利时代
每组计算机占地约为6平米,将这10组依次排列,共占地90平米。每组计算机以1.5米的距离进行间隔,不仅为工作人员留下了足够的活动空间,还能相互交流工作。
机房右侧最前面为设备间,占地约2平米,用于存放服务器、交换机等设备。与此同时,为机房配备2台空调,依次放于机房的右侧。
2、网络系统设计方案
根据学校需求,机房内部网络结构采用成熟性、通用性和稳定性良好的星形交换式网络结构,而交换机则使用网速快、易维护、高性价比的1000M双绞线结构。
鉴于以后网络增长需求,机房整个网络系统均采用以太网技术,保证数据传输带宽在1000M以上。用六类双绞线连接网络主干,通过混合式100/10000M快速以太网连接到桌面。
为能更好的使用学校内部IP资源,避免IP冲突,根据学校实际情况,将学校IP 150号段分配为教师专用IP,151-210号段分配给学生机。
3、综合布线方案 3044AM永利,3044AM永利时代
由于该学校机房设于一年级楼三楼,总共60台计算机、一台教师专用机和一台服务器,因此主干网采用光纤介质,机房内采用双绞线敷设方式,通过地板下线缆布线手段,提高机房内部的安全性和美观度。然后将其与外网相联,实现上网功能。 3044AM永利时代
上一篇:电视台机房供配电改造,“心脏”好节目才能播出好
下一篇:哪些小细节在机房改造方案中应重视?
机房建设设计方案
模块化机房解决方案机,房改造工程
北京无线数据网络机房装修解决方案
机房综合布线系统改造方案设计应注重两个方面
老机房供电系统改造要做好哪些前期准备?
机房机柜改造需要考虑好哪些事项?
哪些小细节在机房改造方案中应重视?
电视台机房供配电改造,“心脏”好节目才能播出好